Projektdaten
Ort: Kornwestheim
Tätigkeit: Netzwerkaufbau inkl. Aufbau des Netzwerkschrank, Serveraufbau und Installation inkl. Einrichtung

Bilder: inaktiv
Ziel dieses Projekts war, im Zuge einer Komplettrenovierung durch den Hauseigentümer, eine angepasste und dem technisch aktuellsten Stand entsprechende Netzwerkinfrastruktur aufzubauen. Hierbei wurde zuerst festgelegt, in welchen Räumen und an welchen Orten ein kabelgebundener Netzwerkanschluss notwendig ist und zukünftig notwendig sein könnte.
Hinzu kam die stockwerksübergreifende Netzwerkplanung.
Am zentralen Sammelpunkt sollen alle Kabel in einem Netzwerkschrank zusammengeführt werden. Zusätzlich erfolgt in diesem Schrank die Installation aller für den Dauerbetrieb (24/7/365) benötigten Netzwerkkomponenten.
Aufbau und Installation des Netzwerks
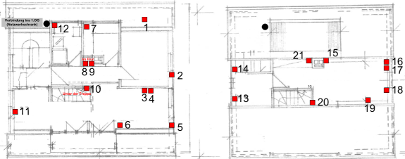
Im der ersten Planungsphase wurden sämtliche Räumlichkeiten besichtigt und festgelegt, an welchen Orten Netzwerkdosen notwendig sind.
Hierfür wurden die Grundrisspläne als Planungsübersicht genutzt.

Insgesamt wurden 21 Dosen und ca. 750m CAT-5e/6 Kabel bis 300 MHz eingeplant und verbaut.
Alle relevanten und lastabhängige Leitungen können in den kommenden Jahren durch leistungsstärkere Ethernet- oder Glasfaserkabel ersetzt werden. Hierbei können die Kabel ersetzt, oder durch die bereits vorhandenen Rohrleitungen neu eingezogen werden.
Während der Renovierungsarbeiten wurden in Abstimmung mit den Handwerkern vor Ort die Montage der Rohrleitungen und Verlegearbeiten durchgeführt. Mit Fertigstellung der Maler- und Putzarbeiten wurden die Netzwerkdosen verbaut und gepatcht. Für die Anschlussverkabelung wurde der Standard nach EIA/TIA-568B festgelegt und genutzt.
Aufbau des Netzwerkschrank
Als zentraler Bestandteil der Netzwerkinfrastruktur wurde der Netzwerkschrank nach Anforderung des Hauseigentümers geplant und umgesetzt.
Zum Einsatz kommt hier ein 15 HE Etagenverteiler für den SOHO-Bereich der QVSL Compact Serie. Dieser ist schwenkbar und ermöglicht auch den seitlichen Zugang zum Schrank. Der Schrank ist mit IP54-Schutzgrad gegen Staub und extreme Feuchtigkeit geschützt.
Als Patchpanel wurden 2 Standard CAT-6 Patchpanel mit je 24 Ports verbaut.
Für den Netzwerkbetrieb wurde ein 24-Port Gigabit-Switch der Firma LevelOne GES-2450 verbaut, welcher eine hohe Skalierbarkeit für zukünftige Erweiterungen bietet.
Zusätzlich kann über den Switch eine permanente Überwachung der Netzwerkinfrastruktur gewährleistet werden.
Aufbau des Server
Die Serverhardware wurde dem aktuellen Stand der Technik aufgesetzt und auf einen reibungslosen 24/7/365 Betrieb ausgelegt.
Hardware:
Prozessor: Intel i3-2120T
RAM: 32 GB DDR3-1333
Motherboard: Gigabyte GA-H77-D3H
HDDs: 120GB SSD (Systemplatte), 512GB SSD (vServer), nach Bedarf weitere wechselbare Datenplatten
Netzwerk: 2x Intel PRO1000 Netzwerkadapter
Als Gehäuse wurde ein 19″ IPC-C338 verbaut.
Dieses ist kürzer als übliche 19″-Gehäuse und passt daher ideal in den verbauten Netzwerkschrank.
